Staircase detail drawing. Download autocad drawing file | CADBULL
Description
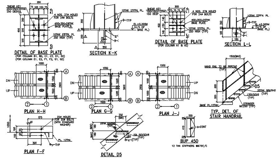
Staircase detail drawing presented in this AutoCAD drawing file. this AutoCAD drawing file consists of base plate detail given in this file with different joinery details. this can be used by architects and interior design. Download this 2d AutoCAD drawing file.
Uploaded by:

